Bad Oeynhausen:
Raum für Ideen - Entspannt und zentral wohnen im beliebten Stadtteil B.O. - Werste
Objekt-Nr.: 262

Außenansicht

Außenansicht Westseite

Balkon

Eingang

Zugang Keller

Treppenhaus

Flur

Küche

Essbereich

Esszimmer - Wohnzimmer

Wohnzimmer

2 Wohnzimmer - Kinderzimmer

Schlafzimmer

Bad

Gäste - WC

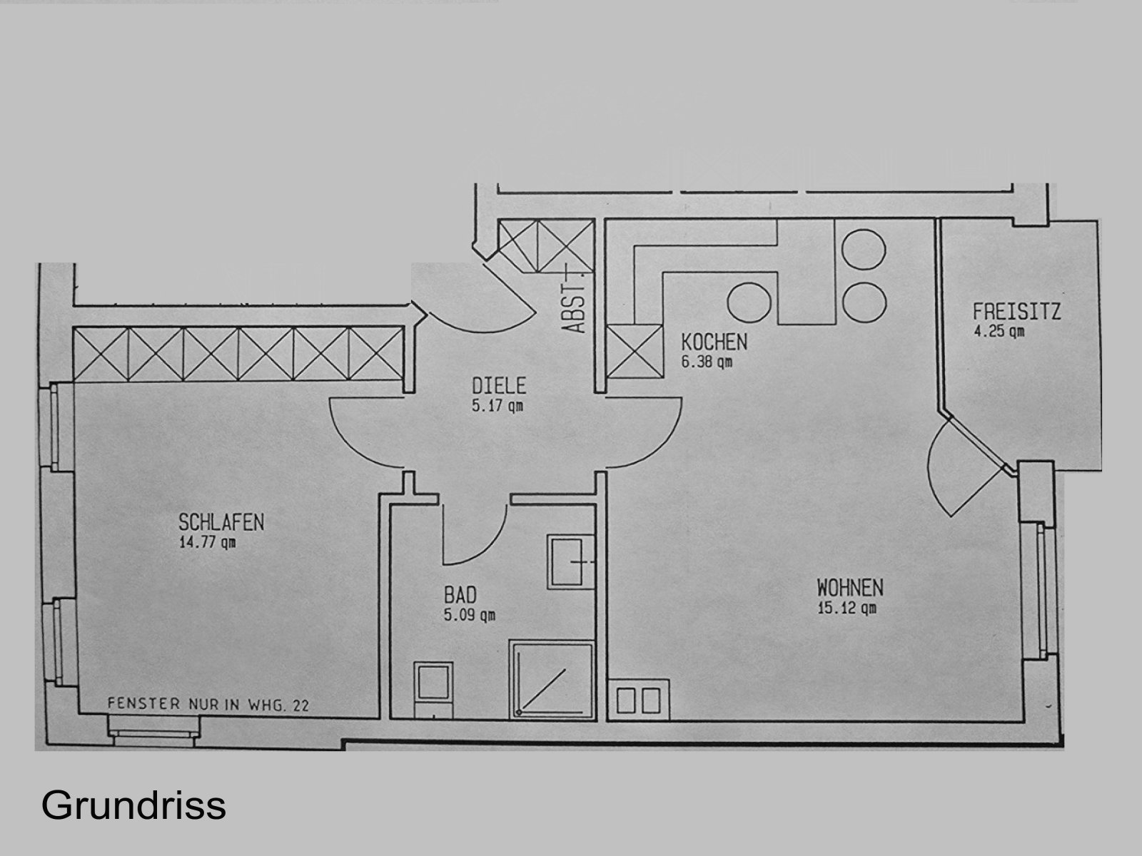
Grundriss OG

Grundriss KG

Flurkarte


















Preis:
149.000 €
Baujahr:
1966
Diese gepflegte 3-Zimmer-Eigentumswohnung mit ca. 92 m² Wohnfläche befindet sich im 1. Obergeschoss eines Mehrparteienhauses aus dem Jahr 1966 in ruhiger Wohnlage von Bad Oeynhausen-Werste. Besonders hervorzuheben ist der großzügige, nach Westen ausgerichtete Balkon, der zum Entspannen und Genießen der Abendsonne einlädt.
Der gut durchdachte Grundriss bietet ein angenehmes Wohngefühl: Ein großer, lichtdurchfluteter Küchen- und Wohn-/Essbereich mit direktem Zugang zum Balkon bildet das Herzstück der Wohnung. Neben zwei weiteren Zimmern stehen Ihnen eine separate Küche mit Einbauküche, ein Badezimmer mit Badewanne sowie ein zusätzliches Gäste-WC zur Verfügung.
Zur Wohnung gehört ebenfalls ein privater Kellerraum. Ein PKW-Stellplatz steht ebenfalls zur Verfügung. Ein Waschmaschinenanschluss ist innerhalb der Wohnung im Gäste-WC vorhanden. Zusätzlichen Wohnkomfort bietet der gemeinschaftliche Trockenraum im Dachgeschoss.
Durch die gute Vermietbarkeit ist die Wohnung für Kapitalanleger ein interessantes Investitionsobjekt.
Preis : 1.620 € pro m²
Provisionspflichtig: ja
Provision: 3,57% inkl. 19% Mwst.
Letzte Modernisierung/ Sanierung: 1994
Qualität der Ausstattung: normal
Wohnfläche ca.: 92 m²
Mieteinnahmen p.a. (Soll): 8.160 €
Umgebung: Apotheke, Einkaufsmöglichkeit
Anzahl der Parkflächen: 1 x Außenstellplatz
Balkon: 1
Küche: Einbauküche
Keller: Abstellraum
Bodenbelag: Fliesen, Teppichboden
Zustand: gepflegt
Energieverb. Warmwasser enthalten: ja
Energieklasse: E
Fußweg zu Öffentl. Verkehrsmitteln: 2 Minute(n)
Heizung: Zentralheizung
Befeuerungsart: Gas
Energieausweistyp: Verbrauchsausweis - gültig vom 07.02.2018 bis 06.02.2028
Energieeffizienz-Klasse: E
Baujahr laut Energieausweis: 1976
Bei Abschluss eines Kaufvertrages wird eine Vermittlungs-/ Nachweisprovision in Höhe von 3,57% inklusive 19 % Mehrwertsteuer auf den Kaufpreis vom Käufer fällig. Mit dem Verkäufer wurde einen provisionspflichtigen Maklervertrag in gleicher Höhe abgeschlossen.
Die von uns gemachten Informationen beruhen auf Angaben des Verkäufers bzw. der Verkäuferin. Für die Richtigkeit und Vollständigkeit der Angaben kann keine Gewähr bzw. Haftung übernommen werden. Ein Zwischenverkauf und Irrtümer sind vorbehalten.
Wir weisen auf unsere Allgemeinen Geschäftsbedingungen hin. Durch weitere Inanspruchnahme unserer Leistungen erklären Sie die Kenntnis und Ihr Einverständnis.
Das könnte Ihnen auch gefallen

Claudia Hermeier Immobilien
Frau Claudia Hermeier
Lübbecker Straße 129
32584 Löhne
Mobil: +49 160 99049337
























































