Vlotho:
Design und Funktionalität - ein Zuhause mit Weitblick
Objekt-Nr.: 265

Straßenansicht

Seiten- und Frontansicht

Frontansicht

Gartenansicht

Gartenansicht

Garten

Garten

Eingangsbereich - Untergeschoss

Untergeschoss

Flur OG

Flur OG

Küche

Küche

Essbereich

Panorama

Wohnen

Wohnen

Bad

Bad

Gäste WC

Gäste WC

Ankleide - Zugang Bad

Ankleide - Zugang Schlafzimmer

Kinderzimmer

Kinderzimmer

HWR

HWR

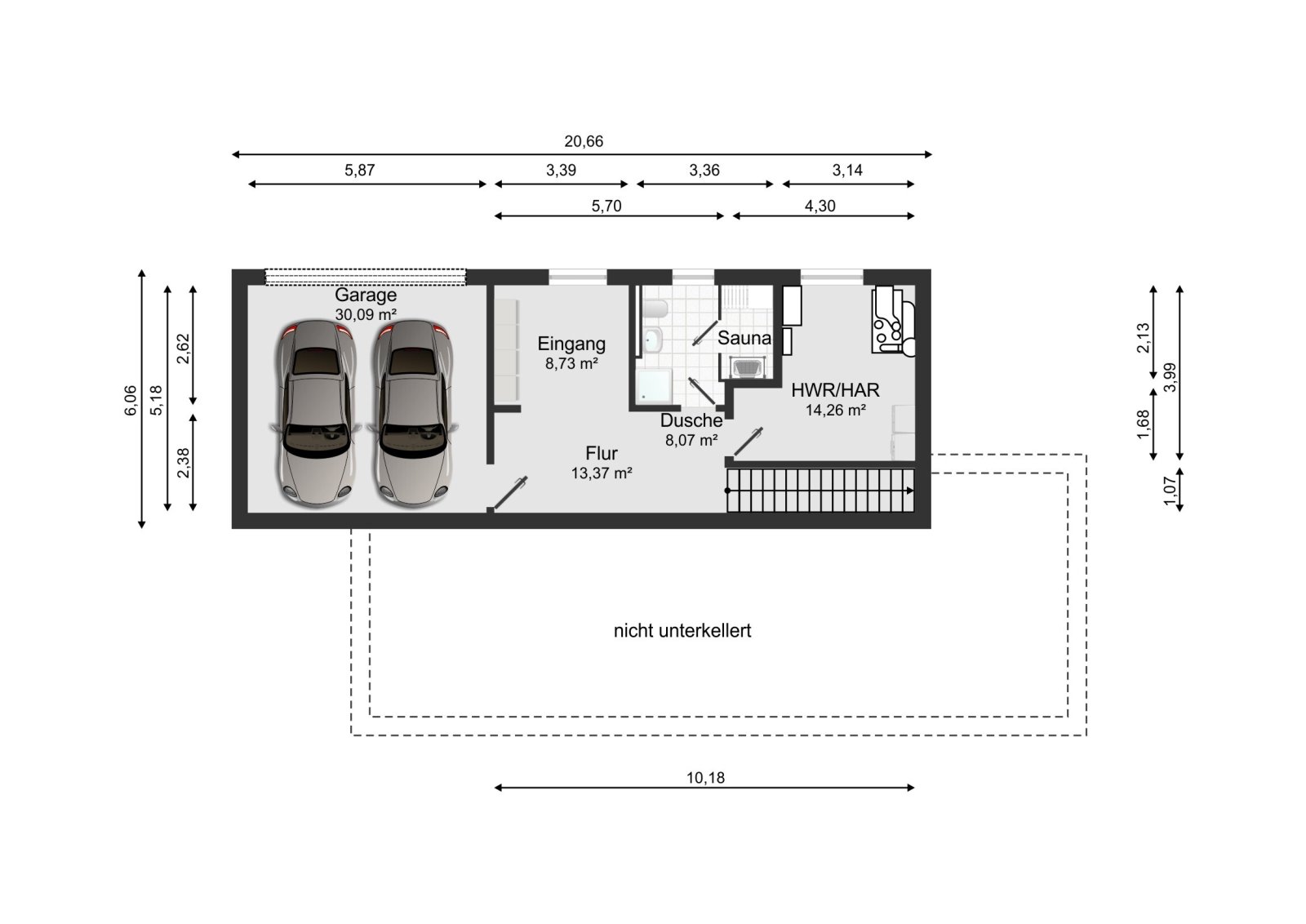
GrundrissUG

GrundrissEG

Flurkarte






























Preis:
529.000 €
Wohnfläche ca.:
180 m²
Grundstück ca.:
900 m²
Zimmeranzahl:
3,5
Die Ausrichtung dieser außergewöhnlichen Immobilie mit bevorzugter Hanglage eröffnet einen einzigartigen Panoramablick auf das Wiehengebirge, das Kaiser-Wilhelm-Denkmal, sowie die Weser und ist weit mehr als ein Zuhause. Exklusive, ruhige Nachbarschaft mit Nähe zur Natur und trotzdem eine hervorragende Anbindung an die umliegenden Städte.
Kein Platz für Standard - hier besticht die Architektur durch eine moderne, außergewöhnliche Formensprache. Durchdachte Grundrisse, gut platzierte Nischen sorgen für eine klare Linienführung und zeitlose Eleganz. Die weitläufigen Glasflächen setzen das Interieur stilvoll in Szene, schaffen ein besonderes Wohnambiente und eröffnen beeindruckende Ausblicke auf die Umgebung. So entsteht ein Wohngefühl, das Großzügigkeit, Leichtigkeit und Exklusivität harmonisch vereint. Hier zeigt sich eine gelungene Verbindung von Design und Funktionalität. Die Hanglage und ca. 180 m² Wohnfläche sowie ca. 60 m² Nutzfläche ermöglichen diese besondere Architektur.…
Ein zentraler Treffpunkt für Familie und Gäste ist die große, offene und lichtdurchflutete Wohnküche mit großzügiger Kochinsel, Einbauschränken, angrenzendem Abstellraum und direktem Zugang zum Garten. Gleichzeitig bietet der Wohnbereich den traumhaften, unverbaubaren Weitblick auf das Wiehengebirge. Das Schlaf- und Ankleidezimmer, sowie die Bäder sind ebenfalls mit Panoramablick. Auf dieser Ebene erwartet Sie außerdem ein stilvolles Gäste-WC und ein weitläufiges Kinderzimmer, das durch kleine Umbaumaßnahmen mühelos in zwei eigenständige Zimmer geteilt werden kann. Eine flexible Lösung, die mit Ihren Wohnbedürfnissen wächst.
Das Untergeschoss mit ca. 74 m² Wohn- und Nutzfläche ist ebenerdig zu begehen. Hier befinden sich der Eingangsbereich, ein Hauswirtschaftsraum sowie ein kleiner Wellnessbereich mit Bad und Sauna (noch nicht fertiggestellt). Besonders hervorzuheben ist die großzügige Doppelgarage mit Industrie-Sektionaltor. Sie ermöglicht nicht nur den direkten Zugang ins Haus, sondern eröffnet auch vielseitige Nutzungsvarianten.
Die Immobilie überzeugt mit hochwertiger und intelligenter Gebäudetechnik, die höchsten Wohnkomfort garantiert, wie z.B. einem intuitiv bedienbaren KNX-Bussystem zur Gebäudeautomation, das die Vernetzung und Steuerung von Heizung, Beleuchtung und vieles mehr ermöglicht. Dank der zentralen Be- und Entlüftungsanlage mit Wärmerückgewinnung genießen Sie ein dauerhaft frisches und angenehmes Wohnklima.
Die Grundlage für zeitgemäßes und stilvolles Wohnen ist geschaffen. Jetzt haben Sie die Chance, die Außenanlage nach Ihren individuellen Wünschen zu gestalten. Verwirklichen Sie Ihre Ideen - so entsteht ein Zuhause, das Ihre Persönlichkeit widerspiegelt. Mit Liebe zum Detail, geschmackvollen Highlights und dem Blick fürs Besondere wird diese Immobilie ein wahrer Wohlfühlort.
Lassen Sie sich überraschen und entdecken Sie Ihr Traumhaus in Vlotho.
Haustyp: Einfamilienhaus
Etagenanzahl: 2
Kubatur: 1.080 m³
Provisionspflichtig: ja
Provision: 3,57% inkl. 19% Mwst.
Nutzfläche ca.: 59,11 m²
Küche: Einbauküche, offen
Bad: Dusche, Wanne, Fenster, Bidet
Anzahl Schlafzimmer: 2
Anzahl Badezimmer: 1
Gäste-WC: ja
Sauna: ja
Anzahl der Parkflächen: 2 x Garage
Ausblick: Fernblick
Qualität der Ausstattung: gehoben
Baujahr: 2013
Verfügbar ab: nach Absprache
Bodenbelag: Fliesen
Energieverb. Warmwasser enthalten: ja
Energieklasse: B
Heizung: Fußboden, Zentralheizung
Befeuerungsart: Gas
Energieausweistyp: Verbrauchsausweis - gültig vom 11.09.2025 bis 10.09.2035
Energieeffizienz-Klasse: B
Baujahr laut Energieausweis: 2013
Bei Abschluss eines Kaufvertrages wird eine Vermittlungs-/ Nachweisprovision in Höhe von 3,57% inklusive 19 % Mehrwertsteuer auf den Kaufpreis vom Käufer fällig. Mit dem Verkäufer wurde einen provisionspflichtigen Maklervertrag in gleicher Höhe abgeschlossen.
Die von uns gemachten Informationen beruhen auf Angaben des Verkäufers bzw. der Verkäuferin. Für die Richtigkeit und Vollständigkeit der Angaben kann keine Gewähr bzw. Haftung übernommen werden. Ein Zwischenverkauf und Irrtümer sind vorbehalten.
Wir weisen auf unsere Allgemeinen Geschäftsbedingungen hin. Durch weitere Inanspruchnahme unserer Leistungen erklären Sie die Kenntnis und Ihr Einverständnis.
Das könnte Ihnen auch gefallen

Claudia Hermeier Immobilien
Frau Claudia Hermeier
Lübbecker Straße 129
32584 Löhne
Mobil: +49 160 99049337

















































































