Enger:
**verkauft** Modernisiert mit ausgebautem Spitzboden... mehr Raum als augenscheinlich erwartet!
Objekt-Nr.: 206

Gartenansicht

Blick in den Garten

Blick von der Terrasse aus

weiterer Stellplatz

Frontansicht

Eingangsbereich

Flur - Treppe

Badezimmer

Bad mit Blick zur Dusche

Gäste-WC

ausgebauter Spitzboden

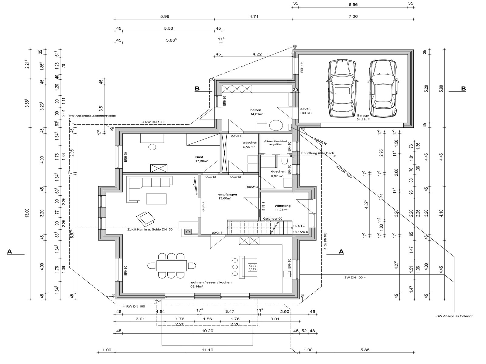
Grundriss EG

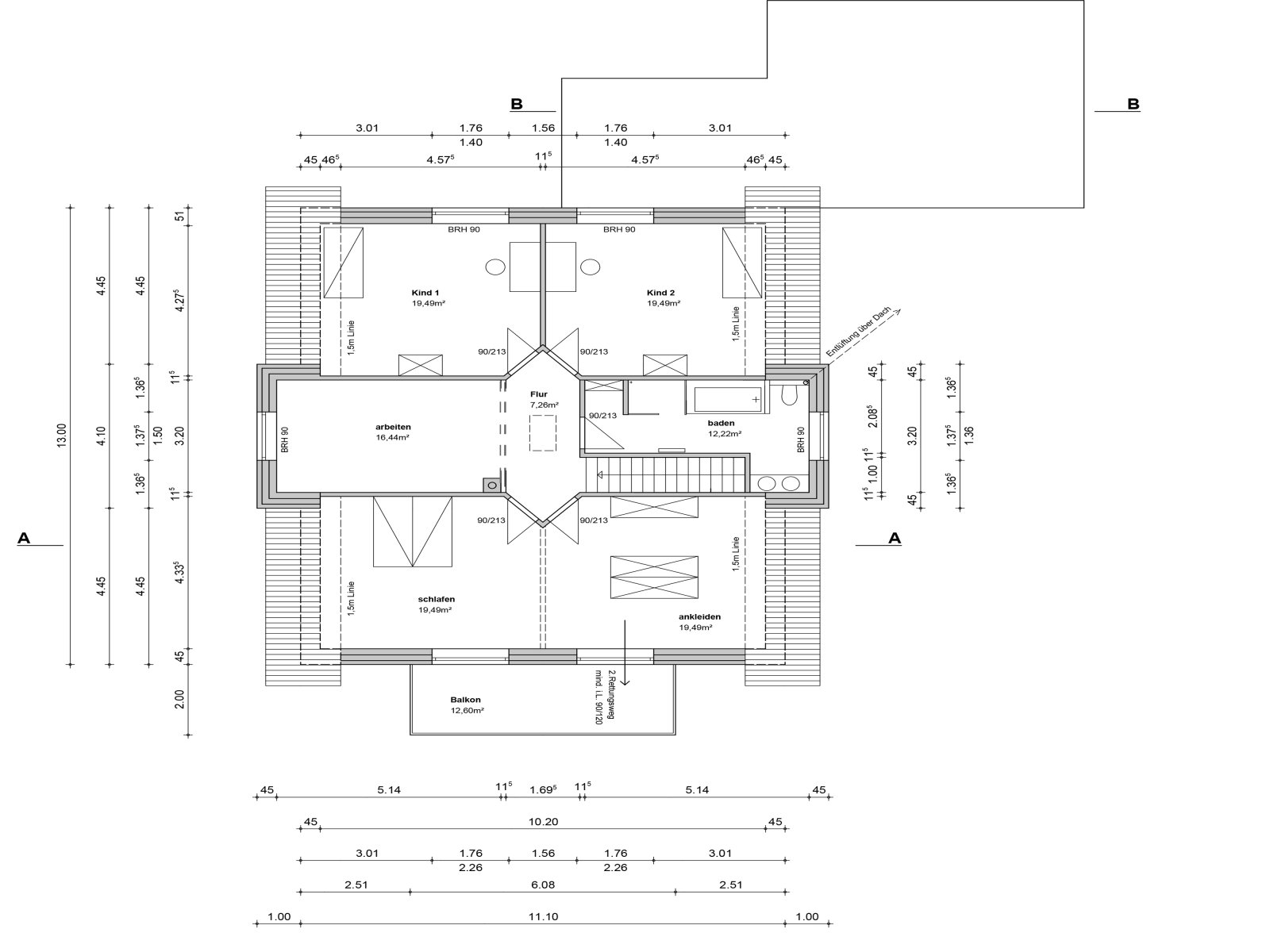
Grundriss DG

Grundriss KG

Grundriss Garage

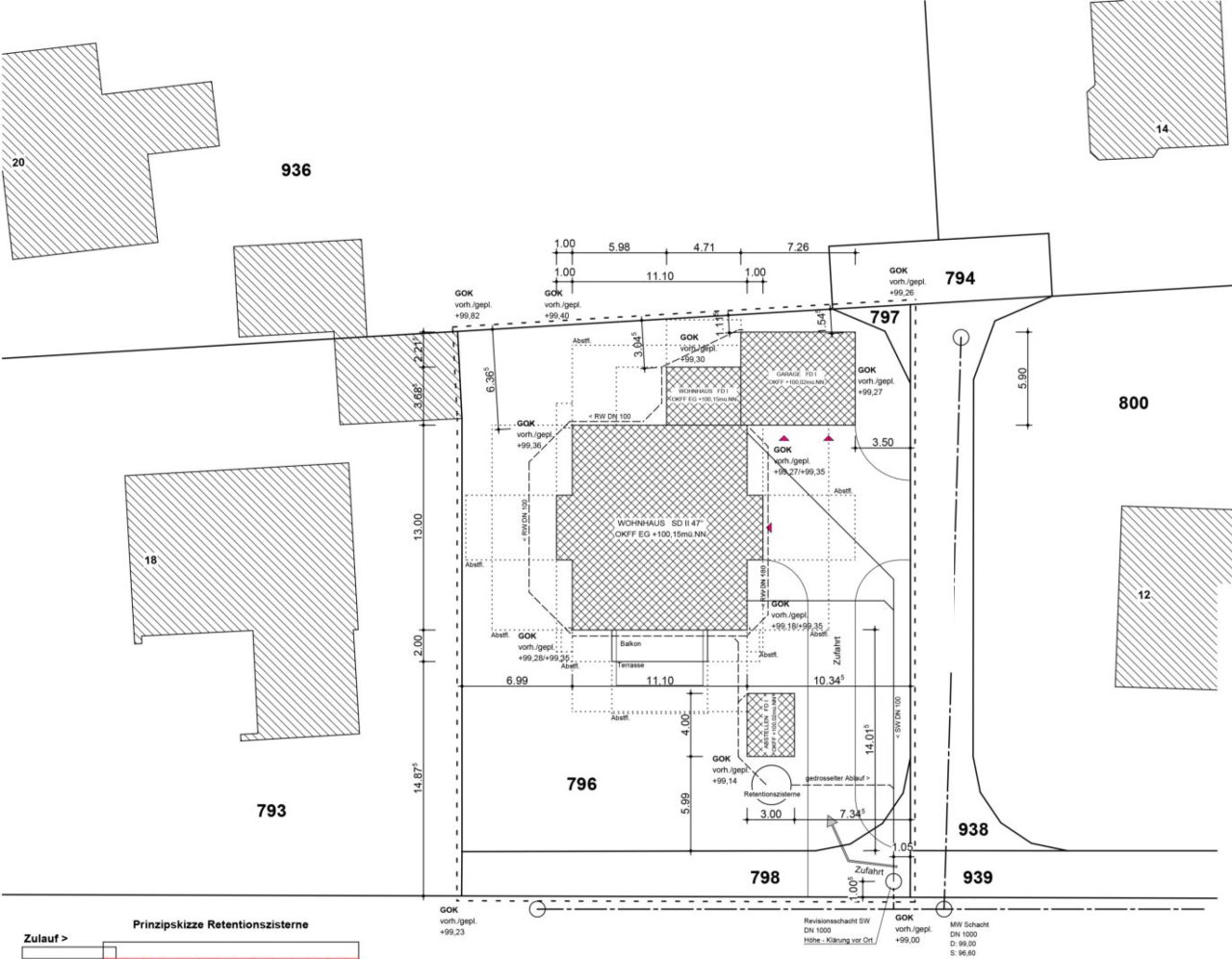
Lageplan
















Preis:
269.000 €
Wohnfläche ca.:
92 m²
Grundstück ca.:
719 m²
Zimmeranzahl:
5
Einfamilienhaus in Massivbauweise aus dem Jahre ca. 1959 mit Vollkeller, Garage, und großzügigem Garten. Die Immobilie wurde gepflegt und in den letzten Jahren modernisiert.
Die Gesamtwohnfläche von ca. 92 m² Wohnfläche zzgl. Spitzboden (ca. 18 m² Wohnfläche nicht mit ausgewiesen) ist wie folgt aufgeteilt:
Das Erdgeschoss beinhaltet einen Windfang, Flur, Küche, Wohn- Esszimmer und ein Gäste-WC. Von der Küche aus gelangen Sie auf die überdachte Terrasse mit Blick in den südlich gelegenen Garten.
Das Dachgeschoss verfügt über 3 weitere Schlafzimmer, einem zum Süden ausgerichteten Balkon und einem Tageslichtbad mit Badewanne und Dusche.…
Der ausgebaute Spitzboden mit 2 gemütlichen Zimmern, sorgt für weiteren Wohnkomfort.
Genießen Sie den kommenden Sommer in dem großzügigen Garten. Ihre neue grüne Oase bietet genügend Platz zum Spielen, Entspannen und für individuelle Gartengestaltung.
Die Immobilie ist vermietet, aus Diskretionsgründen veröffentlichen wir keine weiteren Innenfotos. Gerne zeigen wir Ihnen Ihr neues Zuhause...
Modernisierungsmaßnahmen im Überblick
- ca. 2020 Erneuerung der Gasbrennwertheizung Fabrikat
Vissmann (Warmwasserspeicher Buderus Baujahr ca.
2004)
- ca. 2013 Spitzbodenausbau (nicht genehmigt)
- ca. 2010 Stromsicherungskasten erneuert
- ca. 2009 Hauseingangstür erneuert
- ca. 2008 Hauseingangstreppe erneuert
- ca. 2008 Aufbereitung der Innentüren
- ca. 2007 Modernisierung des Bades im DG
- ca. 2007 Dachfenster Velux mit Rolladen erneuert
- ca. 2005 Terrassenüberdachung erneuert
- ca. 2003 Balkongeländer erneuert
- Kunststofffenster/Isolierverglasung teilweise von 1984
und 2009
Haustyp: Einfamilienhaus
Provisionspflichtig: ja
Provision: 3,57% inkl. 19% Mwst.
Bad: Dusche, Wanne, Fenster
Anzahl Schlafzimmer: 4
Anzahl Badezimmer: 1
Terrasse: 1
Gäste-WC: ja
Keller: voll unterkellert
vermietet: ja
Umgebung: Einkaufsmöglichkeit, Grundschule, Kindergarten
Anzahl der Parkflächen: 1 x Außenstellplatz; 1 x Garage
Letzte Modernisierung/ Sanierung: 2000
Qualität der Ausstattung: normal
Baujahr: 1959
Mieteinnahmen p.a.: 5.220 €
Verfügbar ab: nach Absprache
Zustand: modernisiert
Heizung: Zentralheizung
Befeuerungsart: Gas
Energieausweistyp: Bedarfsausweis - gültig vom 11.11.2022 bis 10.11.2032
Energieeffizienz-Klasse: H
Baujahr laut Energieausweis: 2020
Bei Abschluss eines Kaufvertrages wird eine Vermittlungs-/ Nachweisprovision in Höhe von 3,57% inklusive 19 % Mehrwertsteuer auf den Kaufpreis vom Käufer fällig. Mit dem Verkäufer wurde einen provisionspflichtigen Maklervertrag in gleicher Höhe abgeschlossen.
Die von uns gemachten Informationen beruhen auf Angaben des Verkäufers bzw. der Verkäuferin. Für die Richtigkeit und Vollständigkeit der Angaben kann keine Gewähr bzw. Haftung übernommen werden. Ein Zwischenverkauf und Irrtümer sind vorbehalten.
Wir weisen auf unsere Allgemeinen Geschäftsbedingungen hin. Durch weitere Inanspruchnahme unserer Leistungen erklären Sie die Kenntnis und Ihr Einverständnis.
Das könnte Ihnen auch gefallen

Claudia Hermeier Immobilien
Frau Claudia Hermeier
Lübbecker Straße 129
32584 Löhne
Mobil: +49 160 99049337


















































































