Bielefeld:
Gestalten statt suchen, anpacken lohnt sich - Bungalow in attraktiver Lage
Objekt-Nr.: 272

Südseite

Ansicht

Zugang Hauseingang

separate Terrasse am Schlafzimmer

Straßenansicht

Hauseingang

Eingang

Gartenseite

Blick in den Garten

Wohnen

KI Homestaging

Wohnen

KI Homestaging

Schlafzimmer

Arbeitszimmer-Kinderzimmer

Bad - Abbildung ähnlich

Gäste WC

Kinderzimmer

Kellerzugang

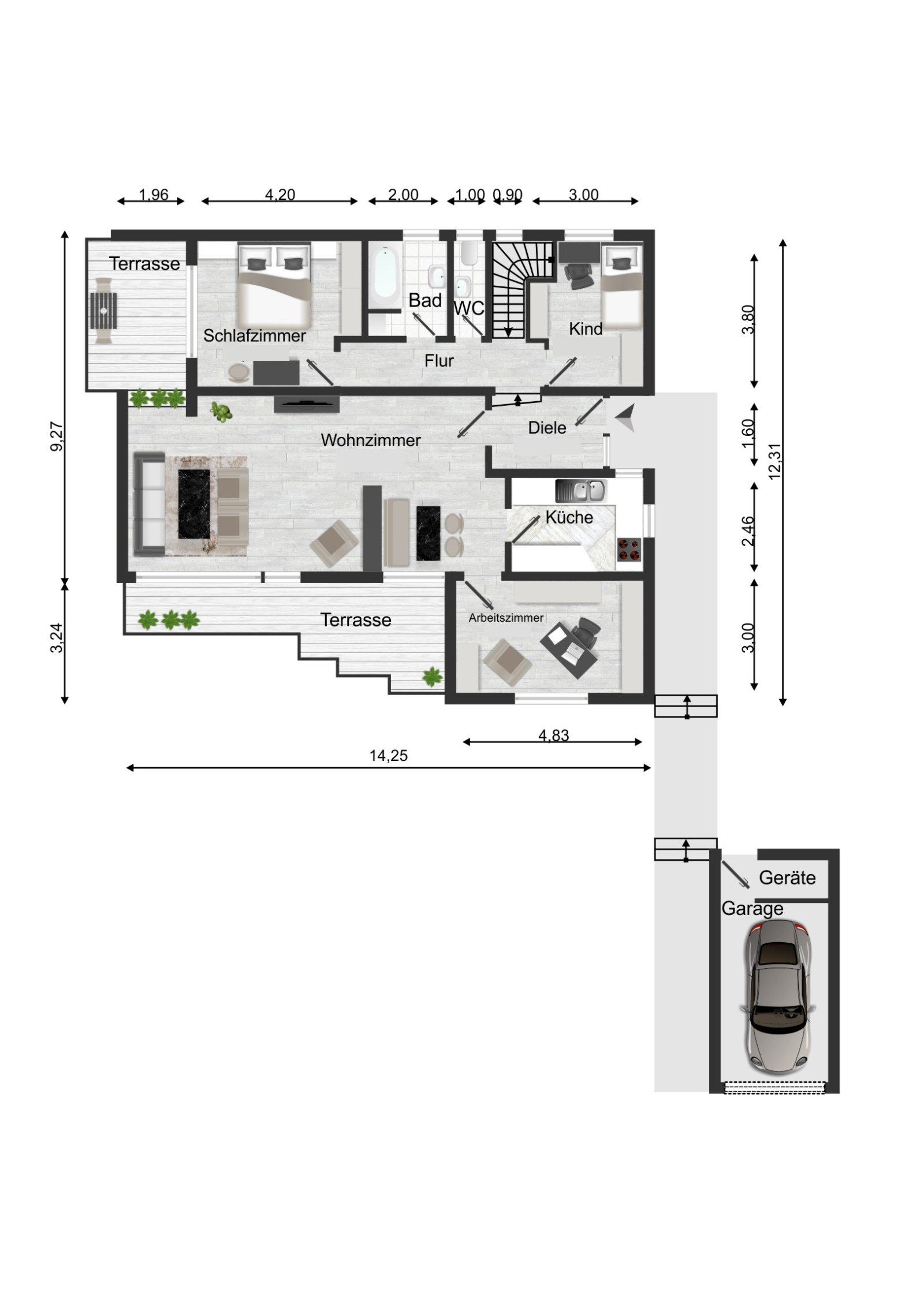
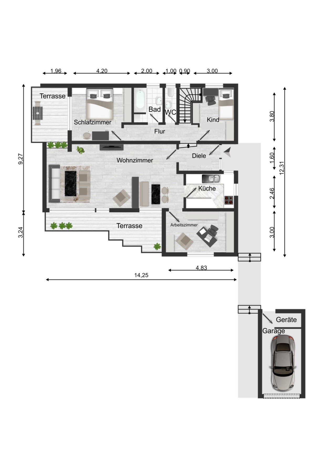
Grundriss EG

Grundriss KG

Flurkarte






















Preis:
329.000 €
Wohnfläche ca.:
111,40 m²
Grundstück ca.:
777 m²
Zimmeranzahl:
4
Zum Verkauf steht ein ebenerdiger Bungalow aus dem Baujahr 1962 mit Teilkeller, gelegen auf einem großzügigen Grundstück mit ca. 777 m² Fläche in ruhiger Wohnlage. Durch die leichte Hanglage und die Südausrichtung ergeben sich hervorragende Bedingungen für vielfältige Gestaltungsmöglichkeiten und eine sonnige Gartennutzung.
Besonders hervorzuheben ist die geplante Umwandlung des derzeitigen Erbbaurechtsgrundstücks/Erbpachtgrundstücks in Volleigentum (bereits unterstellt und im Kaufpreis enthalten), wodurch sich langfristig zusätzliche Attraktivität und Wertstabilität ergeben.
Die Immobilie hat eine Wohnfläche von ca. 111 m² und überzeugt durch ihre klassische, funktionale Raumaufteilung auf einer Ebene. Das Haus wurde bislang nur geringfügig modernisiert und bietet daher eine ideale Grundlage für individuelle Renovierungs- oder Sanierungsmaßnahmen.
Haustyp: Bungalow
Etagenanzahl: 2
Provisionspflichtig: ja
Provision: 3,57% inkl. 19% Mwst.
Küche: Einbauküche
Bad: Wanne, Fenster
Anzahl Schlafzimmer: 2
Terrasse: 2
Gäste-WC: ja
Keller: teil unterkellert
Umgebung: Einkaufsmöglichkeit, Grundschule, Kindergarten
Anzahl der Parkflächen: 1 x Garage
Baujahr: 1962
Verfügbar ab: nach Absprache
Zustand: renovierungsbedürftig
Energieklasse: H
Heizung: Zentralheizung
Befeuerungsart: Öl
Energieausweistyp: Bedarfsausweis - gültig vom 13.04.2026 bis 12.04.2036
Energieeffizienz-Klasse: H
Baujahr laut Energieausweis: 1962
Bei Abschluss eines Kaufvertrages wird eine Vermittlungs-/ Nachweisprovision in Höhe von 3,57% inklusive 19 % Mehrwertsteuer auf den Kaufpreis vom Käufer fällig. Mit dem Verkäufer wurde einen provisionspflichtigen Maklervertrag in gleicher Höhe abgeschlossen.
Wir weisen auf unsere Allgemeinen Geschäftsbedingungen hin. Durch weitere Inanspruchnahme unserer Leistungen erklären Sie die Kenntnis und Ihr Einverständnis.
Das könnte Ihnen auch gefallen

Claudia Hermeier Immobilien
Frau Claudia Hermeier
Lübbecker Straße 129
32584 Löhne
Mobil: +49 160 99049337
































































