Löhne:
Wunderschönes Grundstück mit sanierungsbedürftigem Wohnhaus
Objekt-Nr.: 249

Frotansicht

Garten

Seitenansicht Haupthaus

Anbau Wintergarten

Taubenschlag

Gartenhaus

Gartenansicht

Garage mit Abstellraum

Kellertreppe

Eingangsbereich

Treppe

Esszimmer EG

Wohnzimmer EG

Küche EG

Bad EG

Duschbad DG

Küche DG

Wohnzimmer DG

Kellerraum

Kellerraum

Stromsicherungskasten

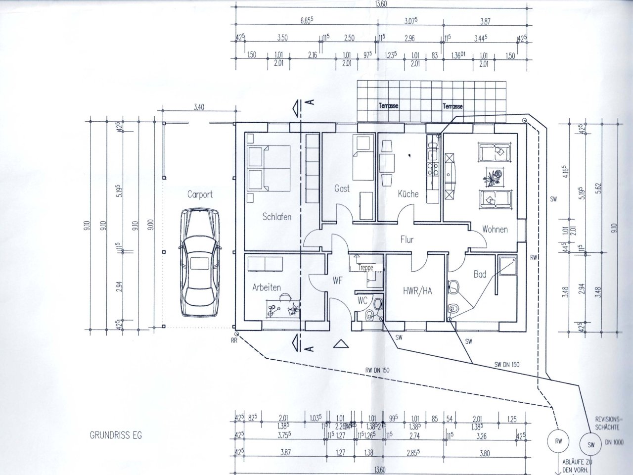
Grundriss EG

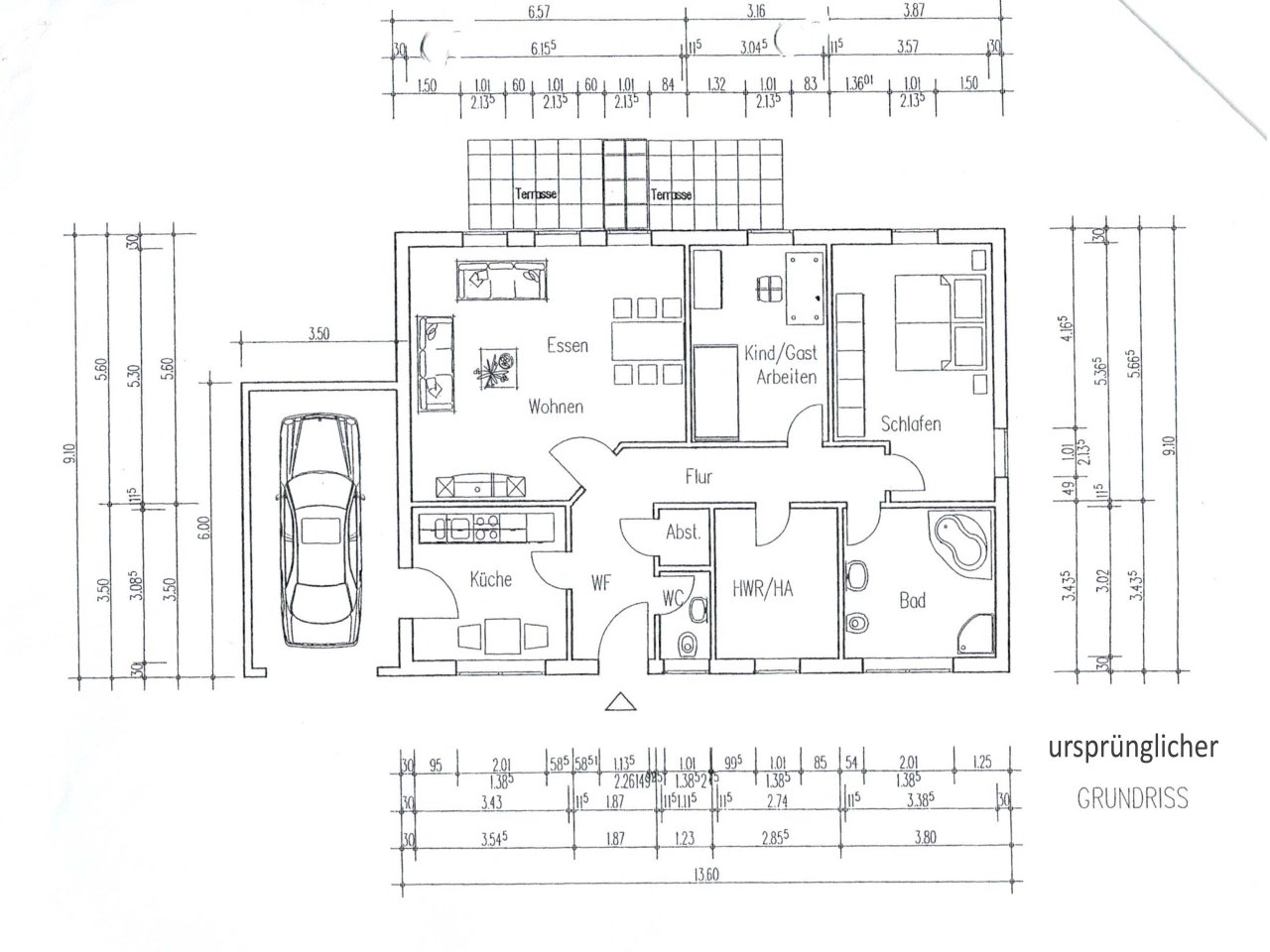
Grundrissskizze DG

Grundrissskizze KG

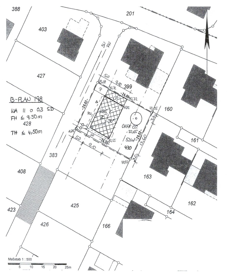
Flurkarte

























Preis:
149.000 €
Wohnfläche ca.:
116 m²
Grundstück ca.:
1.268 m²
Zimmeranzahl:
5
Tolles, weitläufiges ca.1268 m² Grundstück mit südwestlicher Ausrichtung bebaut mit einem EFH in Löhne-Mennighüffen wartet auf neuen Besitzer mit handwerklichem Geschick.
Hier sind viele Ideen und genügend Motivation für ein Sanierungsprojekt gefragt! Modernisieren Sie energetisch, passen Sie den Grundriss an und genießen Sie die Vorteile im Eigenheim.
Sanierungsbedürftiges Einfamilienhaus aus dem Jahre ca. 1936 mit Vollkeller und einem großzügigen Grundstück von ca. 1268 m².
Das Haupthaus mit ca. 116 m² Gesamtwohnfläche ist in zwei Wohneinheiten aufgeteilt.…
Im Erdgeschoss befinden sich 3 Zimmer, eine Küche, das Bad mit ebenerdiger Dusche und der Anbau/Wintergarten. Das Dachgeschoss verfügt über 3 Zimmer, eine Küche und ein kleines Duschbad.
Aufgrund der separaten Nebengebäude mit ca. 50 m² Nutzfläche bekommen Sie viel Raum für Hobbys und Unterstellmöglichkeiten. Der Partyraum mit Taubenschlag bietet ebenfalls viel Platz für Geräte oder individuelle Nutzungsmöglichkeiten.
Genau diese Häuser mit großzügigem Grundstück eignen sich für Heim- und Handwerker, die sich mit Eigenleistungen in Zeiten steigender Immobilienpreise immer noch den Traum vom Eigenheim erfüllen möchten.
Selbstverständlich könnte diese Immobilie auch abgerissen und ein Neubau geplant werden. Es liegt kein Bebauungsplan vor, es gelten die baurechtlichen Bestimmungen des § 34 BauGB (umliegende Bebauung anpassen). Derzeit keine Hinterlandbebauung möglich.
Haustyp: Einfamilienhaus
Provisionspflichtig: ja
Provision: 3,57% inkl. 19% MwSt.
Bad: Dusche, Fenster
Anzahl Schlafzimmer: 3
Anzahl Badezimmer: 2
Wintergarten: ja
Keller: voll unterkellert
Anzahl der Parkflächen: 1 x Garage
Letzte Modernisierung/ Sanierung: 2019
Qualität der Ausstattung: einfach
Baujahr: 1936
Verfügbar ab: nach Absprache
Bodenbelag: Teppichboden
Zustand: sanierungsbedürftig
Energieklasse: H
Heizung: Radiatoren
Befeuerungsart: Elektro
Energieausweistyp: Energieausweis liegt zur Besichtigung vor
Bei Abschluss eines Kaufvertrages wird eine Vermittlungs-/ Nachweisprovision in Höhe von 3,57% inklusive 19 % Mehrwertsteuer auf den Kaufpreis vom Käufer fällig. Mit dem Verkäufer wurde einen provisionspflichtigen Maklervertrag in gleicher Höhe abgeschlossen.
Die von uns gemachten Informationen beruhen auf Angaben des Verkäufers bzw. der Verkäuferin. Für die Richtigkeit und Vollständigkeit der Angaben kann keine Gewähr bzw. Haftung übernommen werden. Ein Zwischenverkauf und Irrtümer sind vorbehalten.
Wir weisen auf unsere Allgemeinen Geschäftsbedingungen hin. Durch weitere Inanspruchnahme unserer Leistungen erklären Sie die Kenntnis und Ihr Einverständnis.
Das könnte Ihnen auch gefallen

Claudia Hermeier Immobilien
Frau Claudia Hermeier
Lübbecker Straße 129
32584 Löhne
Mobil: +49 160 99049337

















































































